













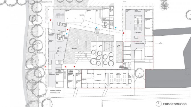
An der Akademiestraße wird der Abschluss des Ensembles vorgeschlagen. Infolgedessen wird eine virtuelle Schließung des Blockes entwickelt, die den Innenhof definieren und aufwerten soll. Der neue Hof ist durch die verschiedenen Passagen der Ort der Vernetzung der Pädagogischen Hochschule Salzburg. Es ist ein introvertierter Baukörper. Das Gebäude an der Viktor-Keldorfer-Straße wird als Riegel ausgebildet, der sich durch die Erschließungen und Terrassen in das Umfeld ausdehnt. Dieser Baukörper verästelt sich in allen Richtungen in den Campus. Die Passagen werden als Einblicke in die neue PH verstanden, um Kommunikation mit dem Inneren zu fördern. Neugierde und Durchwegungslust wird durch verschiedene Stationen geweckt. Die Vorplätze dieser Erweiterung treten sowohl mit der „Grünachse Freisaal“ als auch mit den Außenräumen des „Uni-Parks Nonntal“ durch die großzügigen Außenflächen der Bibliothek, der Mehrzweckbereiche und der Mensa in Dialog. Der Innenhof dehnt sich im Süden zu den Sportflächen aus um auch dort einen neuen Platz mit Aufenthaltsqualitäten zu ermöglichen. Die Eingangsterrasse des Gebäudes an der Akademiestraße wird als Drehscheibe verstanden, die eine Station entlang des Weges vom „Unipark-Nonntal/Freisaal“ vorschlägt, um sich mit der Stadt zu verbinden und urbane Synergien zwischen Hochschule und Cafe mit Schanigarten zu ermöglichen.
Das Erweiterungsgebäude an der Akademiestraße bildet einen öffentlichen Sockel mit allen Funktionen, die Austausch und Kommunikation fördern. Mensa, Mehrzweckraum, Hörsäle und Bibliothek sind im Einklang mit den Passagen und dem Hof die Bereiche, die diese Interaktion ermöglichen. Die Architektur entwickelt sich dann in eigenen Einheiten zwischen den Passagen, die immer wieder offene Zonen mit Ausblick nach Außen bilden. Diese Ausblicke suchen auch Anregungen in der nahen und weiten Landschaft, um die Aufenthaltsqualität dieser Bereiche zu stärken.Die gewählte Typologie für den Riegel an der Viktor-Keldorfer-Straße ist die eines Fassadenraumes als Erschließungs- und Kommunikationszone. Infolgedessen ist dieser Raum der Ort der Bewegung und der Stationen, welcher die verschiedenen Ebenen verbindet.

